Vederea focului este pusa in valoare prin sticla decorativa din doua laturi rezistenta la temperaturi de pana la 600°C, care ofera claritate si un aspect rafinat, contribuind la crearea unei atmosfere calde si primitoare.
Captuseala camerei de ardere cu material Termotec, disponibila si in varianta neagra, sporeste eficienta termica si pastreaza caldura pentru o perioada indelungata dupa stingerea focului.
Arderea fara gratar permite consum eficient de lemne, cu reziduuri minime de cenusa si valorificarea maxima a energiei termice.
Respecta standardele stricte de emisii Ecodesign, BImSchV 2, Flamme Verte, DIN+, 15a B-VG si este testat conform normei EN 16510.
Sistemul cu deflector si radiatoare asigura directionarea gazelor arse pe un traseu mai lung, permitand recuperarea eficienta a caldurii.
Etanseitatea este asigurata prin suduri rezistente in gaz inert, iar piesele din otel prelucrate laser pe CNC garanteaza precizie si durabilitate.
Focarul etans este compatibil cu locuintele dotate cu ventilatie cu recuperare de caldura, datorita racordului dedicat pentru conectarea la aerul exterior.
Reglajul arderii se realizeaza simplu printr-un singur control, cu clapeta pe ax flexibil si garnitura din spuma rezistenta la temperaturi intre -80 si +100 °C.
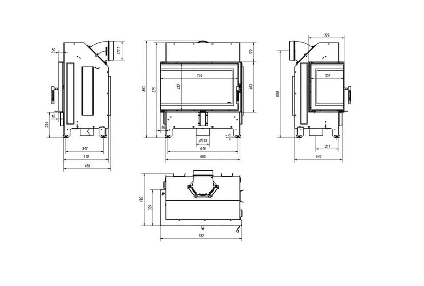
Stabilitatea este asigurata de picioarele reglabile si iesirea de fum rotativa la 360°, iar radiatoarele dese si manerul ergonomic sporesc eficienta si confortul.
Este echipat cu admisie de aer integrata Ø 125 pentru o alimentare eficienta a arderii.









