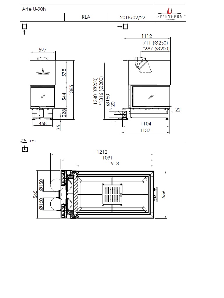
Spartherm Arte U-90h Șemineu panoramic exclusiv pentru o privire impresionantă asupra jocului flăcărilor. Cu inserția de șemineu Arte U-90h, te bucuri de privirea în foc din orice perspectivă. Datorită adâncimii sale speciale, acest șemineu pe lemne se potrivește excelent ca separator de spații. v Transformă focul în punctul culminant absolut și în centrul casei tale cu un șemineu din seria Arte U. Fiecare șemineu din această serie oferă posibilitatea de a deschide fereastra cu ajutorul funcției inteligente de asistență pentru șemineu, S-ESAM.
Producator Spartherm
Pentru mai multe focare similare FOCARE CU 3 GEAMURI






